Courtier Immobilier
Entrelacs J0T2E0
Maison à étages | MLS: 17271600
Laissez-vous séduire par cette magnifique demeure au cachet unique et rustique, idéalement située en bordure du lac des Îles. En plus de son bord de l'eau avec son quai, elle comprend 3 chambres, dont une sur une mezzanine, 1 salle de bain et un salon lumineux coup de coeur avec son mur fenestré, son poêle à bois et un plafond cathédrale, créant une atmosphère chaleureuse. Son vaste terrain boisé de 19 963 pi² avec accès à l'eau promet quiétude et ressourcement. Un cadre idyllique où nature et tranquillité se rencontrent. Le bord de l'eau est particulièrement intéressant pour les jeunes familles avec son eau peu profonde. À voir!
Offrez-vous un cadre de vie exceptionnel avec cette magnifique demeure au cachet unique et rustique, située en bordure du lac des Îles. Dès votre arrivée, vous serez charmé par son ambiance chaleureuse et accueillante.
Son salon, véritable pièce coup de coeur, offre une vue sur l'eau grâce à son mur fenestré. Agrémenté d'un poêle à bois et d'un plafond cathédrale, il crée une atmosphère invitante, idéale pour les moments de détente en famille ou entre amis.
Avec ses 3 chambres, dont une ouverte sur la mezzanine, cette propriété offre un espace de vie confortable et fonctionnel. Sa salle de bain complète s'intègre harmonieusement à son style rustique et intemporel.
Son vaste terrain boisé de 19 963 pi², bordant le Lac, vous garantit intimité et ressourcement, avec un accès privilégié au lac pour profiter pleinement des plaisirs nautiques.
*Prendre note que l'eau étant peu profonde en avant de la propriété (sur 75-100 pieds), les bateaux auront de la difficulté à se rendre au quai à partir de la saison estival. Toutefois, les amateurs de canoe, kayak ou même surf électrique pourront s'amuser sans limite.
Cette propriété est idéale autant pour une résidence principale que pour une escapade en nature. Une opportunité rare de conjuguer confort, tranquillité et loisirs dans un cadre enchanteur!
À proximité; + Pentes de ski à +/- 30 minutes (Mont La Réserve et Mont-Gabriel) + Pistes fédérées pour motoneige (sur le lac) et VTT (village d'Entrelacs) + Accès exclusif à la descente à bateau du lac des Îles (carte à puce pour résidents) + Commerces et services essentiels du village à 8 min (épicerie, SAQ, quincaillerie, dépanneur, bibliothèque) + Patinoire extérieure au centre communautaire et seconde patinoire directement sur le lac + Sentiers de randonnée, ski de fond et raquettes (Les Boucles d'Entrelacs) + À 20 min de L'Estérel (restaurants, hôtel, golf) + Accès rapide à la route 125, environ 1h15 de Montréal via l'autoroute 15 ou 25
Inclus : Fixtures, rideaux, poêle, réfrigérateur, lave-vaisselle, congélateur, micro-ondes, lit de la mezzanine et deux commodes, lit de chambre à côté de la cuisine.
Exclus : Meubles et effets personnels, Spa
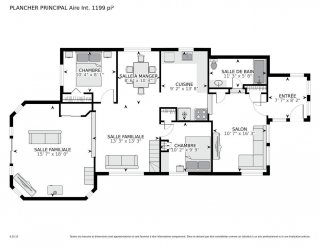
| Chambre | Dimensions | Niveau | Revêtement |
|---|---|---|---|
| Hall d'entrée | 7.3 x 7.10 P | Rez-de-chaussée | Plywood |
| Hall d'entrée | 7.3 x 7.10 P | Rez-de-chaussée | Plywood |
| Boudoir | 10.0 x 14.4 P | Rez-de-chaussée | Plancher flottant |
| Boudoir | 10.0 x 14.4 P | Rez-de-chaussée | Plancher flottant |
| Salle de bains | 5.0 x 9.10 P | Rez-de-chaussée | Tuiles |
| Salle de bains | 5.0 x 9.10 P | Rez-de-chaussée | Tuiles |
| Cuisine | 9.0 x 10.1 P | Rez-de-chaussée | Plancher flottant |
| Cuisine | 9.0 x 10.1 P | Rez-de-chaussée | Plancher flottant |
| Salle à manger | 13.2 x 12.6 P | Rez-de-chaussée | Plancher flottant |
| Salle à manger | 13.2 x 12.6 P | Rez-de-chaussée | Plancher flottant |
| Chambre à coucher | 9.3 x 10.5 P | Rez-de-chaussée | Plancher flottant |
| Chambre à coucher | 9.3 x 10.5 P | Rez-de-chaussée | Plancher flottant |
| Chambre à coucher | 9.4 x 9.5 P | Rez-de-chaussée | Plancher flottant |
| Chambre à coucher | 9.4 x 9.5 P | Rez-de-chaussée | Plancher flottant |
| Salon | 15.8 x 16.0 P | Rez-de-chaussée | Bois |
| Salon | 15.8 x 16.0 P | Rez-de-chaussée | Bois |
| Coin repas | 8.0 x 9.0 P | Rez-de-chaussée | Plancher flottant |
| Coin repas | 8.0 x 9.0 P | Rez-de-chaussée | Plancher flottant |
| Chambre à coucher | 14.0 x 9.4 P | 2ième étage | Plancher flottant |
| Chambre à coucher | 14.0 x 9.4 P | 2ième étage | Plancher flottant |
| Mezzanine | 12.11 x 4.11 P | 2ième étage | Tapis |
| Mezzanine | 12.11 x 4.11 P | 2ième étage | Tapis |
| Particularités | Accès à l'eau, Bordé par l'eau, Cul-de-sac, Navigable, Terrain boisé : feuillus |
|---|---|
| Fenêtres | Aluminium, PVC |
| Fondation | Bloc de béton |
| Armoires | Bois |
| Système d'égouts | Champ d'épuration, Fosse septique |
| Type de fenêtre | Coulissante, Guillotine, Manivelle |
| Allée | Double largeur ou plus, Non pavée |
| Équipement disponible | Échangeur d'air, Installation aspirateur central, Semi-meublé |
| Énergie pour le chauffage | Électricité |
| Stationnement | Extérieur |
| Topographie | Plat |
| Mode de chauffage | Plinthes électriques |
| Foyers-poêles | Poêle à bois |
| Approvisionnement en eau | Puits artésien |
| Zonage | Résidentiel |
| Vue | Sur l'eau |
| Aménagement du terrain | Terrain/cour bordé de haies |
| Toiture | Tôle |
| Sous-sol | Vide sanitaire |